Критерии
Цена
 
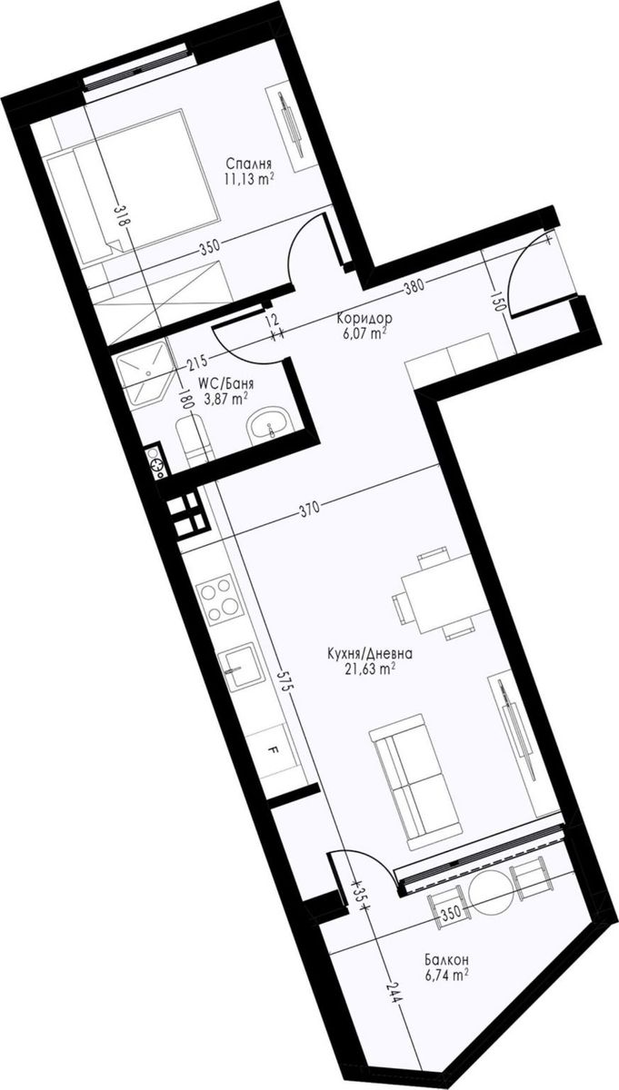
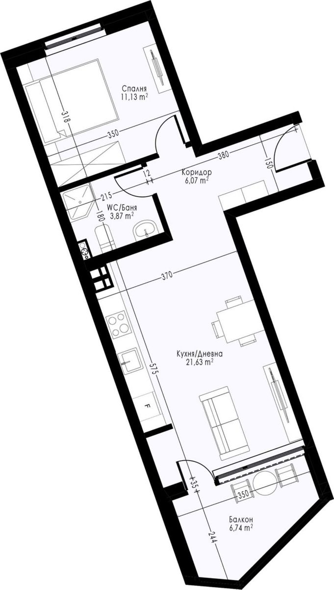
Площ
кв.м.
 
кв.м.
Спални
 
Етаж
 
Година на строеж
 
Начин на отопление
Средство за отопление

Апартамент за продажба

Варна, Възраждане 4

135.000€ | 264.037,05лв

ПРО ВИЖЪН

ДО ПАРК ВЪЗРАЖДАНЕ!!! ПАРКОМЯСТО В ЦЕНАТА!!! МОДЕРНА НОВА СГРАДА!!!



Агенция Про Вижън Ви предлага двустаен апартамент в нова сграда, непосредствено до парк Възраждане. Апартаментът се намира на среден етаж, слънчев и изцяло покрит! Жилището се състои от входно антре, просторен дневен тракт с излаз на тераса, спалня, баня с тоалетна. Статут на апартамент с прилежащо избено помещение и ПАРКОМЯСТО пред сградата. Отлична инвестиция в модерна сграда, на метри от автобусна спирка, търговски комплекси, басейн и просторен парк. За контакти и огледи: Павел Павлов – 0879/666207

ID
2
Квадратура
75 кв.м.
Цена на кв.м.
1.800€ | 3.520,49лв
Област
Възраждане 4 (Варна)
Етаж
4-ти
Гараж / Паркомясто
Да
Година на строеж
2025
Отоплителна Система
Автономно отопление
Статус
Ново строителство